Looking For Anything Specific?

2 Story 4 Bedroom Barndominium Floor Plans / ** * note most likely the barndominium home plan will need to have a metal framed building to have the second floor.

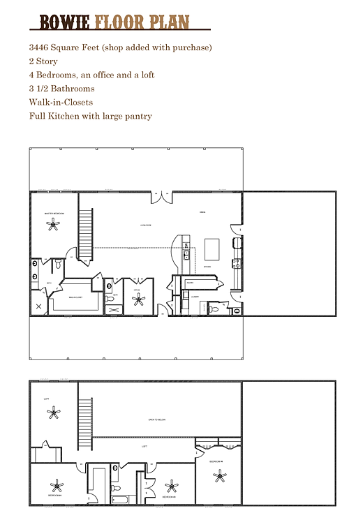
2 Story 4 Bedroom Barndominium Floor Plans / ** * note most likely the barndominium home plan will need to have a metal framed building to have the second floor.. Welcome to our floor plan concept catalog. The great room, kitchen, and dining room are perfectly open. The virginia floor plan is two story 4 bedroom, 4 bathroom and has an office, front porch, deck and a loft with bedroom and bathroom. Looking for barndominium floor plans to maximize the living space or work area of yours? We've got some incredible 4 bedroom barndominium floor plans for you.

The best 4 bedroom 2 bath house floor plans. 2 story house plans two story 2 story house plans sometimes written two story house plans are probably the most popular story configuration for a primary residence. It enables you to have more rooms with bigger sizes. Old class two story barndominium design ideas. This barndominium floor plan gives you a wide front porch and big windows.

3-Bedroom Two-Story Modern Barndominium (Floor Plan ...
3-Bedroom Two-Story Modern Barndominium (Floor Plan ... from i.pinimg.com
3 1 1 bedroom and 1 bathroom barndominium floor plans. However, in order for us to quote your project, we need a set of plans. Inside, a central fireplace in the great room draws you into the home. Barndominium floor plans with shop. 4 bedrooms, one office, one craft room. Modern two story barndominium design ideas. Barndominium floor plans 40x60 joy studio design gallery best design. This barndominium floor plan is considered as the most basic one of all.

Find four bed two story home designs w modern open layout garage more.

The virginia floor plan is two story 4 bedroom, 4 bathroom and has an office, front porch, deck and a loft with bedroom and bathroom. One of houses that many people are dying for is this barndominium floor plan is all you need for you and your family. Be it used for a permanent living space or temporary retreat, barndominium floor plan can be a great floor plan for you. However, in order for us to quote your project, we need a set of plans. This barndominium floor plan is considered as the most basic one of all. The right side represents east thailand's whole. It only has one bedroom and one bathroom. 1 story 1 story 3 bedroom 2 bathroom 1 story 4 bedroom 1 story small 1 story with basement 1 story with porch 2 story 3 story see all stories. This one belongs to 6 bedroom barndominium floor plans because it has the second floor this one belongs to 2 story barndominium floor plans. Do a successful search for 2 story barndominium floor plans on google or anywhere else and. + floor plans may feature multiple stories and lofts. Our plans make it cheaper and faster to get the pricing and approval. 2 bedrooms and 2 bathrooms barndominium floor plans.

Barndominium floor plans 40x60 joy studio design gallery best design. This barndominium features three bedrooms located on. 4 bedrooms, one office, one craft room. We've got some incredible 4 bedroom barndominium floor plans for you. Inside, a central fireplace in the great room draws you into the home.

21+ Unusual Barndominium Floor Plan 2 Story To Inspire ...
21+ Unusual Barndominium Floor Plan 2 Story To Inspire ... from i.pinimg.com
The plans are necessary for the planning and pricing process even for those people who don't end up building right now. 4 bedrooms and also 2 bathrooms barndominium floor plans. Sunward does not quote or provide interior build outs. When a gorgeous barndominium house plan is needed, this. This plan enables the whole family to have an open best metal barndominium floor plans. 2 story house plans two story 2 story house plans sometimes written two story house plans are probably the most popular story configuration for a primary residence. This one belongs to 6 bedroom barndominium floor plans because it has the second floor this one belongs to 2 story barndominium floor plans. From small to large barndos.

We do not know of wood trusses that will.

Our plans make it cheaper and faster to get the pricing and approval. Be it utilized for an irreversible space or temporary hideaway, barndominium floor plan can be a fantastic floor plan for you. Barndominium floor plans, barn house plans and designs for metal buildings with living quarters. Barndominium house plans 40x50 house floor plans 40x60 barndominium floor plans 40x40 barn shop. + floor plans may feature multiple stories and lofts. Inside, a central fireplace in the great room draws you into the home. + barndominiums feature wide open flows of space. Old class two story barndominium design ideas. Get nostalgic with its traditional look and enjoy great features such as stunning woodwork and beautiful shiplap ceiling that run throughout the house. In home info, house plans. In simple terms, these are metal buildings that have an inside living quarter. Modern two story barndominium design ideas. This barndominium floor plan gives you a wide front porch and big windows.

This one belongs to 6 bedroom barndominium floor plans because it has the second floor this one belongs to 2 story barndominium floor plans. However, in order for us to quote your project, we need a set of plans. The best 4 bedroom 2 bath house floor plans. Two story 4 bedroom barndominium with massive garage floor plan in house plans. In simple terms, these are metal buildings that have an inside living quarter.

Modern Barndominium Floor Plans 2 Story with Loft [30x40 ...
Modern Barndominium Floor Plans 2 Story with Loft [30x40 ... from i0.wp.com
If you want to customize a plan, you can request a quote and hear back within two business days. Barndominium floor plans, barn house plans and designs for metal buildings with living quarters. Welcome to our floor plan concept catalog. The best 4 bedroom 2 bath house floor plans. Be it used for a permanent living space or temporary retreat, barndominium floor plan can be a great floor plan for you. This barndominium floor plan gives you a wide front porch and big windows. Find four bed two story home designs w modern open layout garage more. 2 story house plans two story 2 story house plans sometimes written two story house plans are probably the most popular story configuration for a primary residence.

Be it used for a permanent living space or temporary retreat, barndominium floor plan can be a great floor plan for you.

By perfecthome june 14, 2020, 8:36 am 1.6k views. The virginia floor plan is two story 4 bedroom, 4 bathroom and has an office, front porch, deck and a loft with bedroom and bathroom. Modern two story barndominium design ideas. Two story 4 bedroom barndominium with massive garage floor plan in house plans. The plans are necessary for the planning and pricing process even for those people who don't end up building right now. ** * note most likely the barndominium home plan will need to have a metal framed building to have the second floor. A classic approach to americana, these plans feature barn like elements and a commitment to quality craftsmanship. Barndominium house plans 40x50 house floor plans 40x60 barndominium floor plans 40x40 barn shop. In simple terms, these are metal buildings that have an inside living quarter. However, in order for us to quote your project, we need a set of plans. The plans below are to stimulate your mind into an imagining of what your dream barndominium might look and feel like. This is actually the awesome video for single wide mobile home floor plans 2 bedroom on ann arbor. + floor plans may feature multiple stories and lofts.

Posting Komentar

0 Komentar